Écrin de Douceur

« Un véritable nid douillet qui profite d’une belle vue face à la montagne pour cette résidence secondaire ».
TYPOLOGIE
Résidence secondaire
MISSION
Agencement & Décoration
superficie
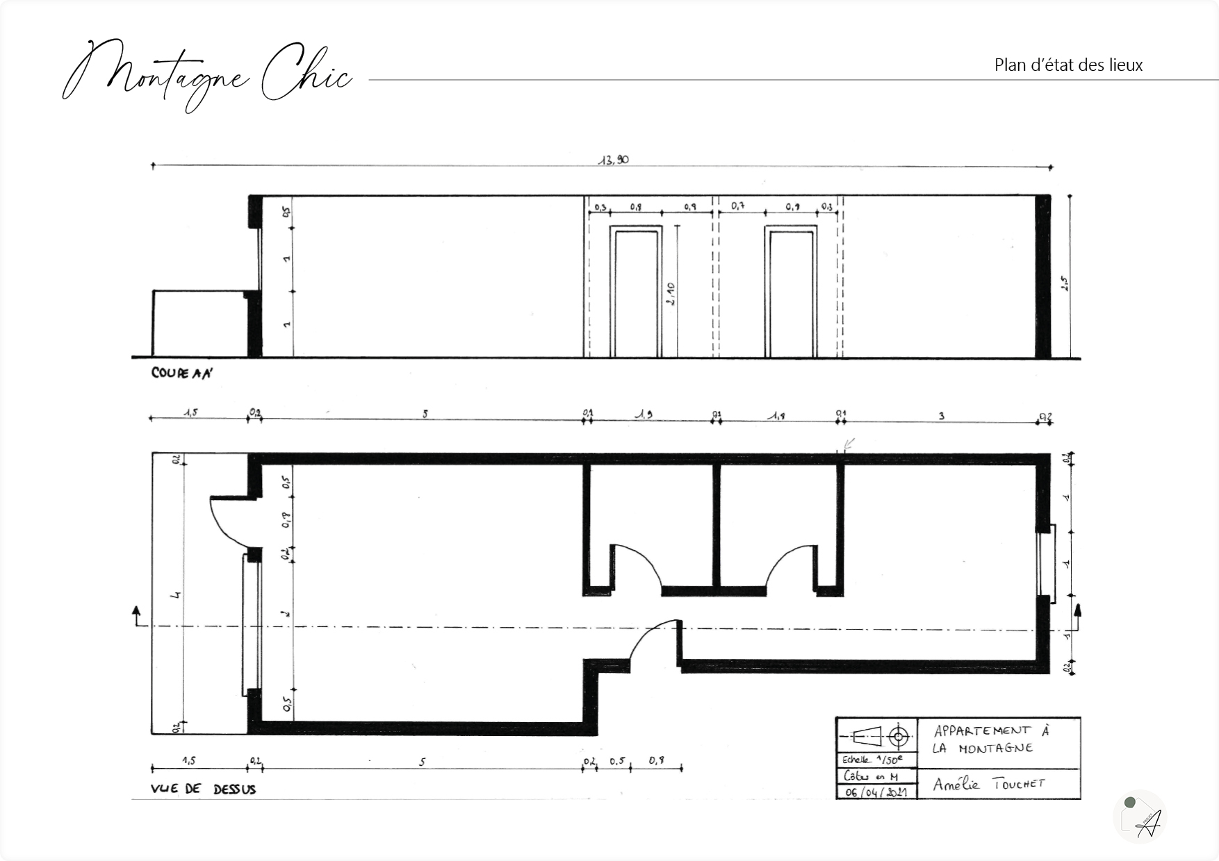
41 m²
Projet

L’objectif de cette rénovation a été de repenser l’espace et d’en révéler le potentiel afin d’offrir un lieu de vacances alliant charme alpin, confort moderne et esprit pratique.  

Ce couple de parisiens, parents d’un adolescent, souhaitaient créer un lieu à leur image et loin du quotidien : chaleureux, convivial, ressourçant, propice aux retrouvailles en famille.

L’intention : Créer une ambiance douce et enveloppante sans renoncer aux rangements et à la fluidité des circulations, malgré une surface réduite tout en valorisant la vue côté balcon.

Agencement & aménagement

Face aux différentes propositions, le couple a finalement opté pour une refonte complète de l’appartement, qui leur offre un bel espace de vie, tout en conservant un second coin nuit.

  • Pour accentuer la sensation de volume, nous avons supprimé le couloir au profit d'une entrée totalement ouverte, qui fait tampon entre les espaces jour et nuit. Délimitée visuellement, elle apporte un réel confort au retour d’une journée de ski pour que chacun puisse se dévêtir et y ranger ses affaires.
  • Nous avons pris le parti de créer une véritable suite parentale, tout en séparant les WC. Celle-ci dispose d’une penderie très utile pour y laisser leurs affaires entre deux saisons.
  • Cette redistribution nous a permis d’aménager un second espace nuit indépendant, façon cabane perchée en haut de la montagne, où un décor panoramique floute les limites et accentue le sentiment de profondeur.
  • Dans la pièce de vie, un meuble-verrière en cannage nous permet de semi-cloisonner les espaces communs tout en facilitant la circulation et préservant les volumes.
  • La cuisine dispose d’un long plan de travail fonctionnel et de nombreux rangements.
  • Le coin repas s'organise autour d’une grande table orientée face à une vue dégagée sur le panorama et nous invitant à des moments conviviaux.
  • Un petit salon vient s’installer devant la verrière, dans une ambiance intime, parfaite pour se détendre après une journée sur les pistes.

Emotions & atmosphères

L’univers de la montagne y est réinterprété subtilement, pour créer un lieu intime, inspirant et intemporel.

En accord avec l’environnement, nous avons travaillé essentiellement avec des matières naturelles et de qualité qui nous plongent dans un cocon de douceur hivernale :

  • Les teintes grises, beiges, vertes, associées au bois, à la laine et à la fourrure, évoquent la chaleur et la douceur de vivre à la montagne.
  • La céramique, la chaux et le béton renforcent l’aspect brut et authentique tandis que l’éclat du métal doré se marie parfaitement à l’ensemble avec une note d’élégance.
  • Quelques touches de métal noir rehaussent le tout pour plus de caractère.

Finalité

Chaque choix d’aménagement a été pensé pour répondre aux usages réels, tout en valorisant la vue et les sources de lumières naturelles.

Le mobilier sur mesure et les matériaux de qualité apportent discrétion, élégance et durabilité.

« Le tout compose une ambiance apaisante, propice au ressourcement, dans le respect des envies des clients ».

Client

« Amélie a répondu positivement aux différentes demandes avec un aménagement cohérent et recherché. Efficace, actuel et élégant ses partis pris et son audace nous ont séduits. »

envie d'en voir d'autres ?
précédent
Suivant